Blueprints
Description
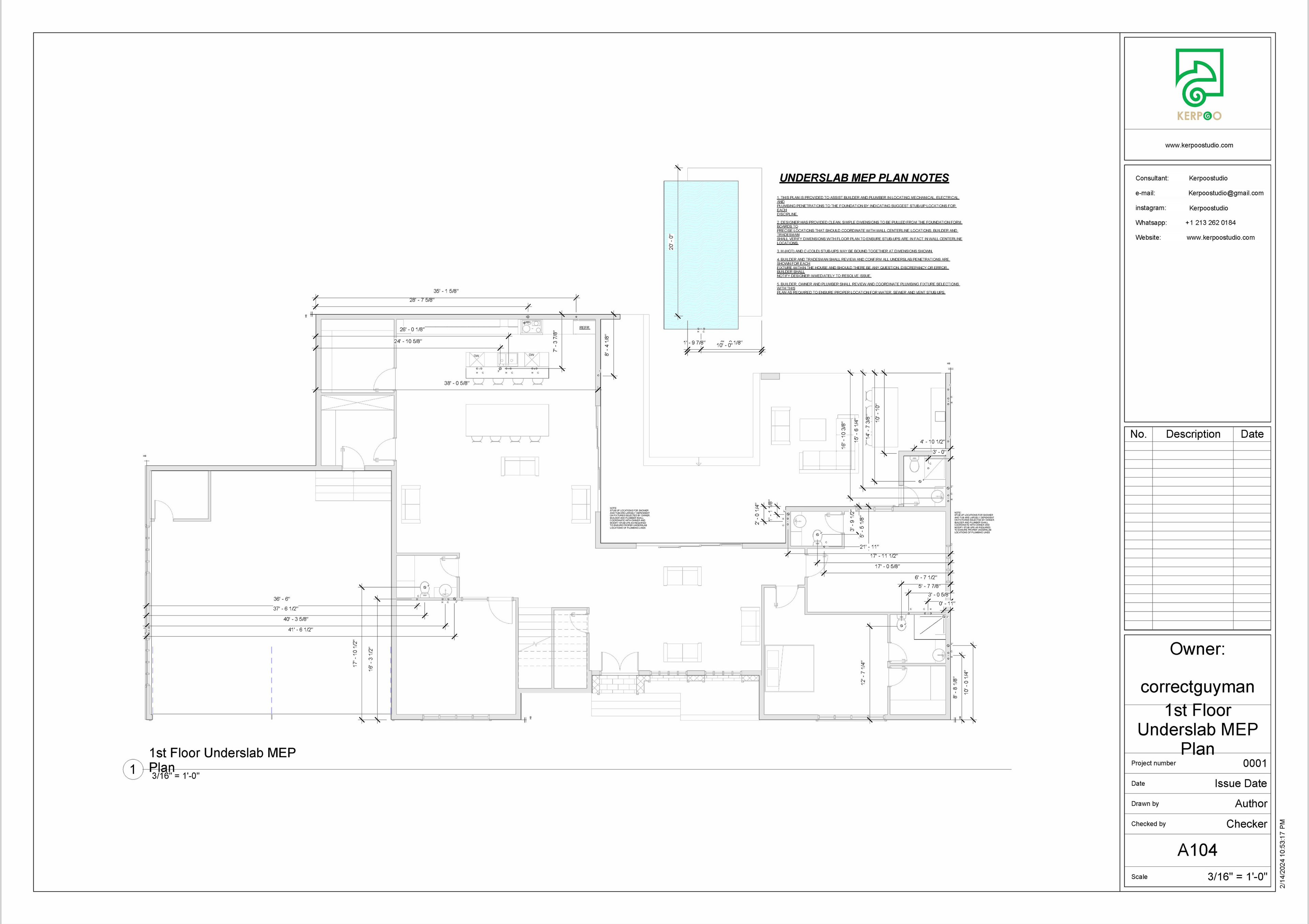
A blueprint is a reproduction of a technical or engineering drawing used for A house execution process. Our Bluprint service includes the following:
- Electrical Plan
- Plumbing Plan
- Foundation Plan
- Roof Plan
- Site Plan
- Elevations
- Rough Sections
Service Samples




Frequently Asked Questions
What things do we need to provide Blueprints?
- If you have the Architectural floor plan, please upload it with the requirements button for us.
- Otherwise, we need to design or draw your floorplan; you can order yours here.
How are the prices based?
- The prices are based on the total area of the Building.
We have five default sizes for plans that you can order instantly, and for more than 5000 Sqft (about 450 SqM), please contact us directly on chat.
How long does it take to do my Blueprints usually?
- It will be based on the total area of the design, but usually, it takes up to 5 days.
How many revisions do we have for the Blueprints?
- The revision for the Floorplan design service is Unlimited.
How can I get Refunded if the result doesn’t cover my requirements?
- Please refer to our refund policy page for detailed information.